
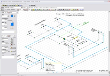
Pipe Flow Expert 软件可让您轻松绘制并建模管道设计。
该软件通过极其直观的用户界面定义管道系统,同时支持等轴测3D管道布局。
我们致力于打造可靠、易用且功能强大的管道设计软件,让管道设计师事半功倍,节省无数小时、数日乃至数月的工作时间。
管道设计与管线建模
管道模型通常包含以下标准物理参数:
计算结果涵盖:各管道流量、流速、雷诺数、摩擦系数、管道摩擦压力损失、管件损失、组件压力损失、节点压力、管线水力坡度线(HGL)、泵运行点(含所需扬程)等参数。
流量与压降计算
Pipe Flow Expert 可计算管道系统内的平衡稳态流量、管道压降及节点压力。
采用科尔布鲁克-怀特摩擦系数方程确定正确管道摩擦系数,并运用达西-韦斯巴赫摩擦损失计算法测算管道摩擦损失。
管道设计求解
为求解流量与压力损失结果,需满足以下条件:
第二个条件也可延伸至“伪回路”(系统中任意两个储罐或端点间的路径),此时路径沿线管道的压力损失代数和必须等于起点与终点间的压差。
求解方法
Pipe Flow Expert 从管道系统模型中生成基础的能量守恒与质量守恒流体方程。随后运用先进的数学矩阵方法求解所得的水力方程,同时考虑泵、组件、流量控制装置、减压阀、保压阀、管道配件、管道材料、管道尺寸及流体数据等因素。
最终解将通过二次算法验证:该算法比对所有相邻节点的计算压力值,确保压力差等于连接节点管道内流动产生的压力损失。这种双重验证机制可确保无论采用何种路径计算特定压力基准点的压力损失,每个节点的计算压力值均保持一致。
精确求解管网中的流量与压力并非易事,其难度远超已知流量下单根管道的压力损失计算——正因如此,采用配备可靠计算引擎的成熟软件至关重要。Pipe Flow Expert已赢得全球100多个国家用户的信赖。
京ICP备09015132号-996 | 网络文化经营许可证京网文[2017]4225-497号 | 违法和不良信息举报电话:4006561155
© Copyright 2000-2025 北京哲想软件有限公司版权所有 | 地址:北京市海淀区西三环北路50号豪柏大厦C2座11层1105室